X为了获得更好的用户体验,请使用火狐、谷歌、360浏览器极速模式或IE8及以上版本的浏览器
关于我们 | 帮助中心
欢迎来到天长市科技大市场,请 登录 | 注册
尊敬的 , 欢迎光临!  [会员中心]  [退出登录]
成果 专家 院校 需求
当前位置: 首页 >  科技成果  > 详细页

[00018871]模拟滨海平原水库水质咸化垂直变化规律的装置

交易价格: 5 万元

所属行业: 其他机械

类型: 实用新型专利

技术成熟度: 正在研发

专利所属地:中国

专利号:ZL201320704278.8

交易方式: 5年独占许可转让

联系人: 周庆礼

进入空间

所在地: 天津天津市

服务承诺
产权明晰
资料保密
对所交付的所有资料进行保密
如实描述

技术详细介绍

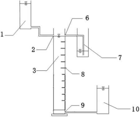
本实用新型公开了一种模拟滨海平原水库水质咸化垂直变化规律的装置,该装置包括土柱3,在土柱3上部的侧壁上设置有进水口2,泄水口6,进水口2通过管路 与水库水或外调水供水容器1连接,泄水口6通过管路与溢出水集水容器7连接;土柱3的底部设置有地下咸水进水口9,地下咸水进水口9通过管路与地下咸水定 水头供水容器10连接,在土柱3的侧壁上设置有取样口8。本实用新型的装置可以模拟不同影响因素,如浅层地下咸水、底质盐分释放、外调水与水库水混合作 用、风的扰动等影响下滨海水库水质咸化垂直变化规律,也可以改变柱内蓄水水质、咸水水位埋深等不同试验条件研究地下咸水上移的水文地球化学作用以及咸淡水 界面上移规律。

推荐服务:

Copyright  ©  2019    天长市科技大市场    版权所有

地址:滁州高新区经三路

皖ICP备2023004467